



아산 모종 샛들지구 도시개발사업의 일환으로 주택 공급 지구 내 2025. 03 개교
예정인 가칭 아산 모종 중학교 (46학급) .
신축 체육관 PJ전동창 자동 개폐기 설치 과정입니다.
PJ 전동창이란?
PJ 전동창은 , 전동 모터를 이용하여 창문을 개폐하는 시스템을 말합니다.
일반적인 수동 창문과 달리 버튼이나 리모컨 등으로 간편하게 창문을 열고 닫을 수 있어 편리하며, 체육관이나 다목적 강당 등 손이 닿지 않은 높은 위치에 있는 창문을 환기나 내부 공기 순환 등을 목적으로 쉽게 관리할 수 있습니다.








▼아산 모종 중학교 신규 체육관 내부 모습입니다.






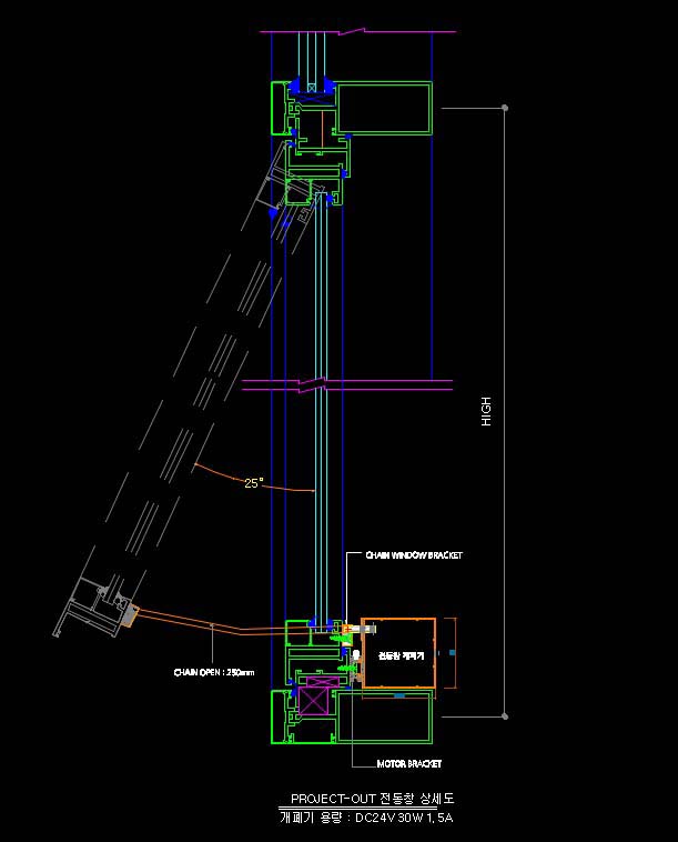
▼프로젝트 전동창 ( PJ전동창) 설치 과정입니다.













▼PJ 전동창 좌우 2회로, 개폐기 컨트롤러.



아산 모종 중학교 체육관에 설치된 PJ 전동창에 대해 좀 더 자세히 알고 싶으신가요?
PJ 전동창이란?
PJ 전동창은 전동 모터를 이용하여 창문을 개폐하는 시스템을 말합니다.
일반적인 수동 창문과 달리 버튼이나 리모컨 등으로 간편하게 창문을 열고 닫을 수 있어 편리하며, 다양한 기능을 추가할 수 있다는 장점이 있습니다.
- 주요 기능:
- 자동 개폐: 수동 버튼이나, 컨트롤러, 리모컨 조작 등으로 간편하게 창문을 열고 닫을 수 있습니다.
- 환기 기능: 미세한 틈새 조절을 통해 효과적인 환기를 할 수 있습니다.
- 차양 기능: 햇빛을 차단하여 실내 온도를 조절하고, 쾌적한 환경을 유지할 수 있습니다.
- 비/바람 감지: 비나 바람이 감지되면 자동으로 창문이 닫혀 시설을 보호합니다.
- 안전 기능: 높은 위치의 창을 안전하고 쉽게 조작할 수 있습니다.
학교 체육관에 PJ 전동창을 설치하는 이유
학교 체육관과 같은 대형 공간에 PJ 전동창을 설치하는 이유는 다음과 같습니다.
- 쾌적한 실내 환경 조성:
- 환기: 체육 활동 후 발생하는 땀 냄새나 먼지를 효과적으로 제거하여 쾌적한 환경을 조성합니다.
- 온도 조절: 겨울철에는 단열 효과를 높여 난방비를 절약하고, 여름철에는 자연 환기를 통해 시원하게 유지합니다.
- 에너지 절약:
- 자연 채광 및 환기를 활용하여 인공조명 및 냉난방 사용을 줄여 에너지 비용을 절감합니다.
- 안전성 향상:
- 비상 상황 발생 시 신속하게 창문을 개폐하여 대피를 용이하게 합니다.
- 강풍이나 태풍 등 자연재해 발생 시 창문이 자동으로 닫혀 시설물을 보호합니다.
- 편의성 증대:
- 버튼이나 리모컨, 전원 반 컨트롤러로 간편하게 창문을 조작하여 관리가 용이합니다.
학교 전동창 설치에 대해 궁금한 점이 있으시면 언제든지 연락해 주세요.
- 특정 기능: 어떤 기능에 대해 궁금하신가요? (예: 자동 개폐, 환기 기능, 타이머 기능 등)
- 학교 전동창 개폐기의 시공 설치 기간은 얼마나 걸리나요?
- 전동창 전기 배선 방법이 궁금하신가요? 2가닥 or 4가닥에 맞는 개폐기 종류는?
- 설치된 제품: 어떤 개폐기가 학교 체육관에 설치되었는지 알고 싶으신가요?
- 견적 문의 : 상황에 맞는 학교 전동창 개폐기 가격이 궁금하신가요?
- 창문 종류( 슬라이딩, 미서기, 프로젝트 창, 케이스먼트 창 등)의 전동창 견적을 받아보실 수 있습니다.
등 다양한 질문에 대한 무료 견적서를 받아보실 수 있습니다.


~이상~

